Používame cookies

Súbory cookie a ďalšie technológie sledovania používame na zlepšenie vášho zážitku z prehliadania našich webových stránok, na to, aby sme vám zobrazovali prispôsobený obsah a cielené reklamy, na analýzu návštevnosti našich webových stránok a na pochopenie toho, odkiaľ naši návštevníci prichádzajú. Viac info

 

NOVÉ 3 izbové BYTY V CENTRE POPRADU - TOP LOKALITA, Výhľad - ODPORÚČAME !!!

Ulica: Francisciho
Mestská časť: Poprad
Obec: Poprad
Okres: Poprad
Kraj: Prešovský kraj
Druh: Byty
Typ: Predaj
Typ bytu: 3-izbový byt
Iné:
265 000 €
Cena je koncová s DPH

Popis nehnuteľnosti

REALITY TATRY - Ponúkame na predaj nové byty v samotnom centre v novostavbe na ulici Francisciho v samotnej blízkosti pešej zóny. Ku každému bytu prislúcha vlastná komora na poschodí, kde je umiestnený samostatný plynový kotol na kúrenie a ohrev TÚV, a príprava na pripojenie práčky. V cene bytu je aj jedno vonkjšie parkovacie miesto v uzavretom priestore s rampou. V byte je podlahové kúrenie, plastové okná s izolačným dvojsklom, omietky hladké, elektrina 230/400V, bezpečnostné protipožiarné dvere. V budove sa nachádza výťah.  Výhodou pre záujemcov môže byť v stave holobytu s možnosťou dokončenia a zariadenia bytu podľa vlastnej predtavy a fantázie.   

Špecifikácia bytov: 

Byty na 2. poschodí:

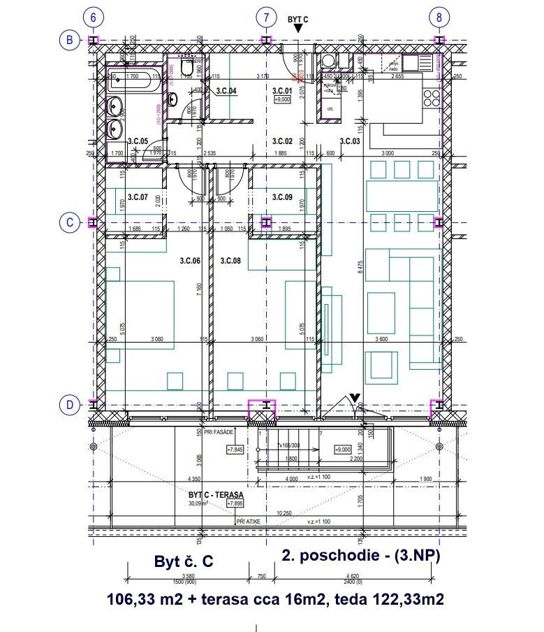
Byt 3C

  • Plocha bytu: 106,33 m² + terasa otočená na juh cca 16 m² (spolu 122,33 m²)
  • Cena:   280 000,- Eur (Cena na m²: 2288,89 €)
  • Dispozícia: Predsieň, chodba, obývacia izba + kuchyňa, WC, kúpeľňa, komora, 2 spálne, 2 šatníky
  • Výhody: Nie je to krajný byt, oddelená denná a nočná časť, parkovacie miesto v cene

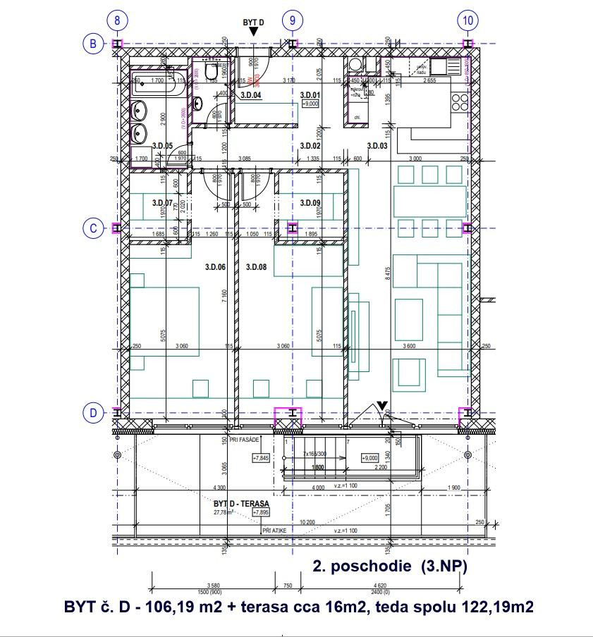
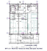
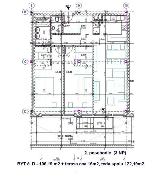
Byt 3D

  • Plocha bytu: 106,19 m² + terasa otočená na juh cca 16 m² (spolu 122,19 m²)
  • Cena:   279 500,- Eur (Cena na m²: 2287,42 €)
  • Dispozícia: Predsieň, chodba, obývacia izba + kuchyňa, WC, kúpeľňa komora, 2 spálne, 2 šatníky
  • Výhody: Nie je to krajný byt, parkovacie miesto v cene

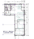
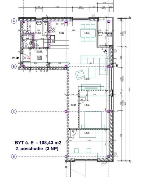
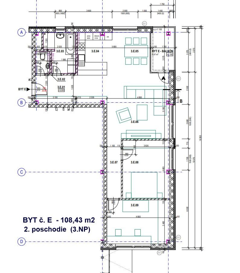
Byt 3E

  • Plocha bytu:  108,43 m² + balkón otočený na sever 6,47 m² (spolu 114,09 m²)
  • Cena:   282 000,- Eur (Cena na m²: 2454,31 €)
  • Dispozícia: Predsieň, chodba, obývacia izba, kuchyňa, jedáleň, WC, kúpeľňa, 2 spálne, komora
  • Výhody: Balkón smerovaný na pokojnejšiu časť (zeleň/park), priestranná kúpeľňa s miestom na vaňu a sprchový kút, parkovacie miesto v cene

Byty na 3. poschodí:

Byt 4G

  • Plocha bytu:    96,64 m² + terasa otočená na juh 16,22 m² (spolu 112,86 m²)
  • Cena:   270 000,- Eur (Cena na m²: 2392,34 €)
  • Dispozícia: Predsieň, chodba, obývacia izba + kuchyňa, WC, kúpeľňa, 2 spálne komora
  • Výhody: Terasa prístupná z obývačky a izby, nie je to krajný byt, parkovacie miesto v cene

Byt 4H

  • Plocha bytu:  96,78 m² + terasa otočená na juh 16,22 m² (spolu 113 m²)
  • Cena:   270 000,- Eur (Cena na m²: 2389,38 €)
  • Dispozícia: Predsieň, chodba, obývacia izba + kuchyňa, WC, kúpeľňa, 2 spálne, komora
  • Výhody: Terasa prístupná z obývačky a izby, nie je to krajný byt, parkovacie miesto v cene

Byt 4I

  • Plocha bytu:  93,76 m² + terasa otočená na juh 20,66 m² (spolu 114,42 m²)
  • Cena:   265 000,- Eur  (Cena na m²: 2316,03 €)
  • Dispozícia: Predsieň, chodba, obývacia izba, kuchyňa, jedáleň, WC, kúpeľňa, 2 spálne, komora
  • Výhody: Kúpeľňa a kuchyňa s oknom, priestranná kúpeľňa s miestom na vaňu a sprchový kút, výhľad na Tatry, výstup na terasu zo spálne, parkovacie miesto v cene

Všetky bližšie informácie získate a obhliadku dohodnete v našej realitnej kancelárii REALITY TATRY, budova MONACO, ul. Francisciho 22, Poprad na tel. čísle 0903 99 30 99

Ďalšiu aktuálnu ponuka nájdete na našich stránkach: www.realitytatry.sk alebo www.realitypopradtatry.sk

Vlastnosti

Status:
aktívne
Vlastníctvo:
osobné
Stav:
novostavba
Celková plocha:
94 m2
Počet podlaží:
4
Počet izieb:
3
Kúpeľňa:
áno
Energetický certifikát:
B
Materiál:
tehla
Zateplený objekt:
áno
Terasa:
áno - 1
Terasa plocha:
16 m2
Vykurovanie:
Pivnica:
áno
Status:
aktívne
Vlastníctvo:
osobné
Stav:
novostavba
Celková plocha:
94 m2
Počet podlaží:
4
Počet izieb:
3
Kúpeľňa:
áno
Energetický certifikát:
B
Materiál:
tehla
Zateplený objekt:
áno
Terasa:
áno - 1
Terasa plocha:
16 m2
Vykurovanie:
Pivnica:
áno

Informatívna úverová kalkulačka

Pozrieť na mape

Maklér

Radi Vám poradíme

Podobné nehnuteľnosti